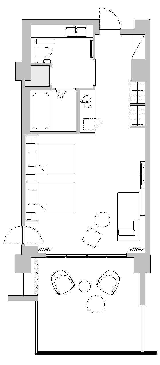
バリアフリールーム Barrier-free Room
段差を無くし、広めの空間の客室。
| フロア | ノースウイング・サウスウイング1階 |
|---|---|
| 広さ | 47㎡ |
| 定員 | 2~3名 |
| ベッド | ベッド 2台(120cm×205cm) ※3名様よりソファベッド(90cm×195cm)のご用意。 |
| 設備・備品・アメニティ | パティオ、空気清浄機、コーヒーマシン、バスチェア、介護用チェア、バスアメニティ |
※客室内は禁煙です。喫煙は所定の喫煙所をご使用ください。
※フロアはご指定いただけません。 客室レイアウトは一例です。
共通の設備・アメニティ・貸出品
| 設備・備品・アメニティ | テレビ、バスまたはシャワーブース、洗浄シャワー付トイレ、冷暖房、クローゼット、湯沸かしポット、ドライヤー、冷蔵庫、携帯電話/スマートフォン充電器、バルコニーチェア、館内着(セパレートタイプ)、室内履き(スリッパ)、バスタオル、フェイスタオル、ボディタオル、ボディソープ、シャンプー、リンス、髭剃り、歯ブラシ、くし、綿棒、コーヒー、お茶(パック)、コットン、ウォータージャグ |
|---|---|
| インターネット | Wi-fi(無料) |
| 貸出品(要予約・数量限定) | ベビーカー、ベビーベッド、ベッドガード、哺乳瓶洗浄ポット、おむつ用ごみ箱、お子様用便座、お子様用昇降台、お子様用全身ソープ、車椅子 ※ベビーベッド:つかまり立ちをされるお子様のご使用はお控えください。 |
| 現地貸出品 | アイロン・アイロン台、爪切り、体温計、氷枕、DVDプレーヤー、空気清浄機 お子様用館内着(セパレート)S:90-100 / M:110-120 / L:130-140 ※【ノースウイング】DVDプレーヤーはTVの仕様上、ポータブルのご用意となります。 |
バリアフリールーム Barrier-free Room
TIPS FOR STAYING
ご滞在のヒント
お部屋に関する
よくあるご質問
Q
子供用の貸し出しアイテムはありますか?どのように依頼すればよいですか??
Q
客室内では、靴を履いたままでいいですか??

