宿泊プラン
宿泊プラン
——————————–
ご家族やグループ旅行におすすめの
コネクティングルームプラン
——————————–
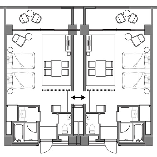
2つの部屋が内扉でつながった「コネクティングルーム」。
ルームキーを使わずに隣室に行き来できます。
『久しぶりに会うおじいちゃん、おばあちゃんと一緒に3世代での家族旅行。
プライバシーは大切に。でも、孫とゆっくり触れ合ってもらいたい!』
『仲良しグループでの旅行。夜遅くまでみんなでワイワイ楽しみたい!』
そのようなご希望にオススメのコネクティングルーム確約プランです。
※パティオスーペリアツイン 平面図
※スーペリアツイン 平面図
※ガーデンテラススタンダード 平面図

■プラン特徴
対象部屋:①スーペリアツイン、パティオスーペリアツイン ②ガーデンテラスタンダード
・4名以上6名まで/1室あたり寝具2~3名様分まで(①)、4名以上12名まで/1室あたり寝具2~6名様分まで(②)のご予約が可能なプランです(添い寝は除く)
・隣接する2部屋が室内の扉でつながっている コネクティングタイプのお部屋です
・バスルーム/トイレはそれぞれのお部屋にあります
・本プランの予約で、2室分の予約を受け付けます(ご予約時は「1室」にてご予約ください)
■ご滞在■
チェックイン15:00~ / チェックアウト~11:00
■ご朝食ブッフェ
石垣島ならではの食材を使ったお料理から、世界各地のお料理まで、様々な味をお楽しみいただける朝食ブッフェ。朝食限定のフレンチトーストもおすすめ。サラダからデザートまで約80~90種類のお料理をご用意しています。


■ご宿泊者限定 無料サービス
〇石垣空港~ホテル間シャトルバス※定時運行
〇無料駐車場
〇屋外プール(スプラッシュパーク/ビーチサイドプール):石垣島最大級のプールエリア※季節営業
〇インドアプール
〇大浴場
〇プール・ビーチ・大浴場でのタオル貸出
〇フサキビーチ/屋外プール:パラソル&チェア利用(一部夏季のみ)
〇全館無料Wi-Fi
■ベビー用品 無料貸出(一例※要事前予約、数量限定)
・ベビーカー・ベッドガード・ハリウッドツイン対応
■こちらのプランは、1室で2室分の予約ができます。
※ご予約の際は「2部屋合計の人数」を入力、「1室」でお進みください。
※1室のご予約で2室分が予約されます。料金も2室分となります。
■必ずホテルまでご連絡ください■
寝具のご用意がございますため、各お部屋のご利用人数内訳を、お申込時に備考欄へご記入またはホテルまでご連絡くださいますようお願いいたします。
■その他
<事前のご予約について>
無料でご利用いただける施設・サービスのほか、各種レストランや FUSAKI SPA等様々な施設がございます。ご滞在を満喫いただくため、ご夕食やSPAなどをご利用いただく際には、事前のご予約をお勧めしています。
<ホテルからのおすすめ情報:リゾートで体験する至極のトリートメント>
豊かな南国植物でお客様をお出迎えするFUSAKI SPA。
ここでしか体験できない石垣島の自然と一体になれるトリートメントをご体験ください。
事前のご予約がお勧めです。メニューの詳細・料金、ご予約は自社サイトをご確認ください。